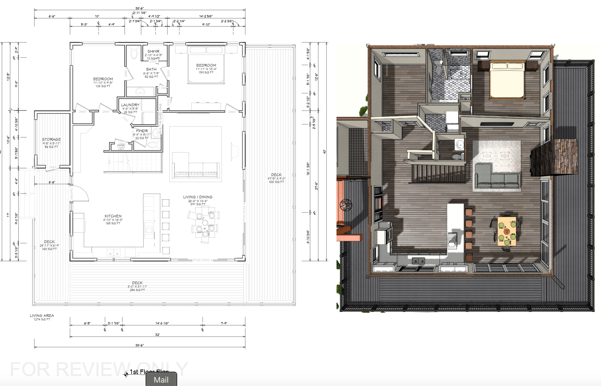
Ridgeview Modern
This modern, cozy home features an efficient layout with an open floor plan that brings everyone together while keeping the space feeling light and uncluttered. Large windows frame sweeping views, making the surrounding landscape part of the everyday living experience.
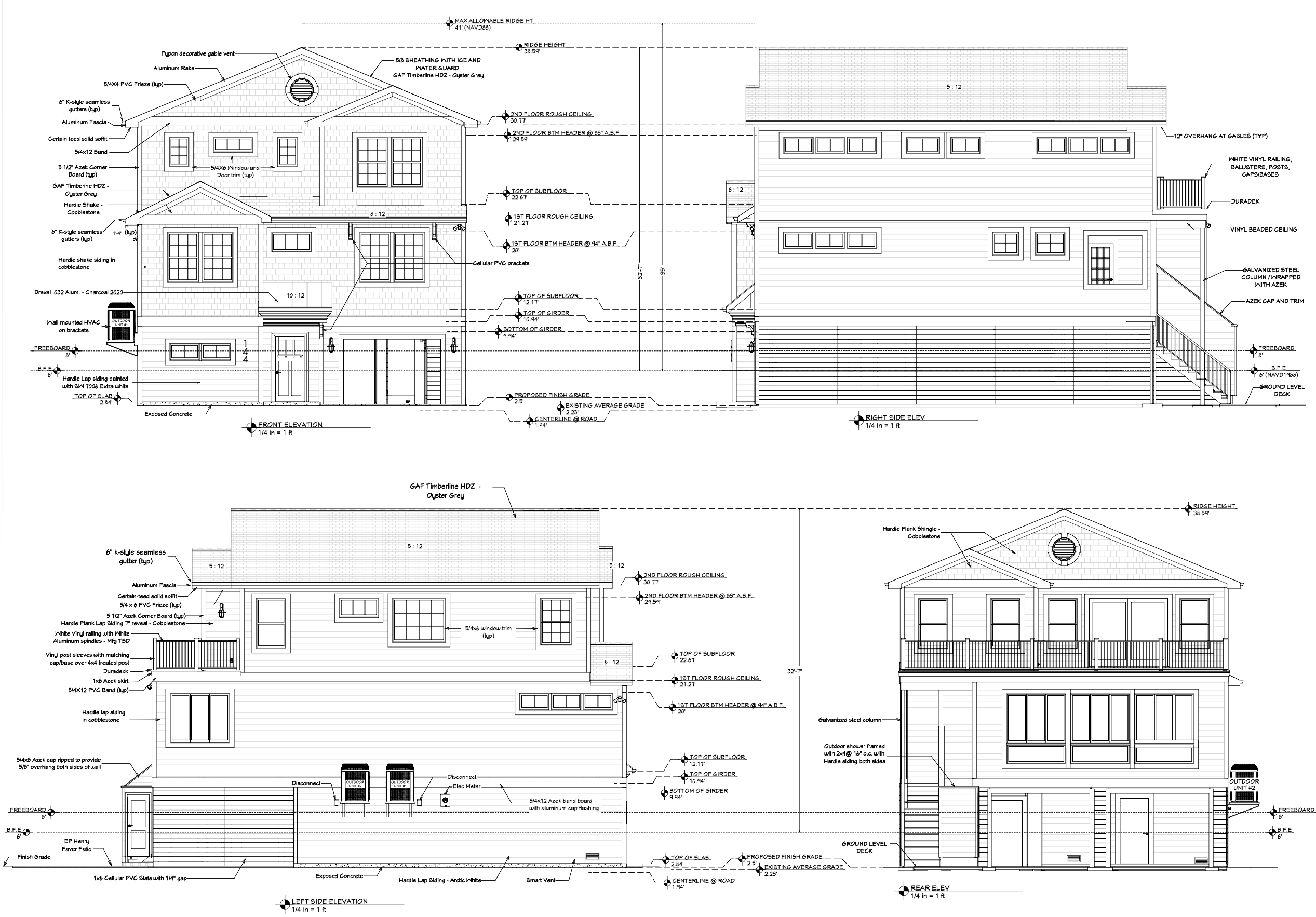
Mariner’s Bluff
This modern beach-style home is designed to squeeze every drop of potential out of the lot, using smart planning and clean lines to keep the space feeling open and breezy. Sunlight, ocean air, and indoor–outdoor flow shape the whole experience, turning the entire footprint into livable, coastal comfort.







